Rendering 1
previous arrow
next arrow
Rendering 1
Rendering 2
Rendering 3
Rendering 4
Rendering 5
1st Floor Plan
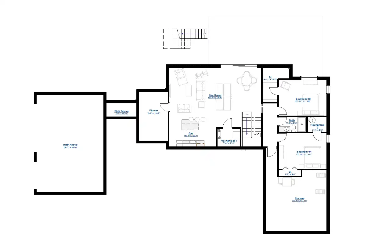
Lower Level Plan
previous arrow
next arrow

Kestrel

Kestrel is a modern ranch-style home designed with both sustainability and everyday comfort in mind. With its clean architectural lines, open-concept layout, and emphasis on efficiency, this home is ideal for homeowners looking to combine thoughtful design with long-term performance. The main level centers around a spacious kitchen, dining, and living area with vaulted ceilings and large windows that bring in natural light and connect seamlessly to the outdoor deck and covered porch. The private primary suite is tucked away for comfort and features a generous layout, walk-in closet, and a well-appointed bath. A secondary bedroom, full bath, and dedicated studio space with a kitchenette provide flexibility for guests, multi-generational living, or creative use. A breezeway connects the home to a detached two-car garage, while the family entry and laundry area help keep daily routines organized. The finished lower level expands the living space with a large recreation room, fitness area, additional bedrooms, and ample storage. Designed with energy efficiency in mind, Kestrel offers a forward-thinking approach to modern living without sacrificing warmth or functionality, perfect for hosting with the holidays.
The best solar orientation for this house is with the front door facing north.

$2500

Heated Sq. Ft.

3950

Beds

4

Baths

3

Stories

2

Cars

2

Plan Highlights

Modern Farmhouse | Ranch | Energy Efficient Design

• Modern ranch design focused on energy efficiency
• Open-concept kitchen, dining, and living area with vaulted ceilings
• Private primary suite with walk-in closet and full bath
• Dedicated studio space with kitchenette for flexible living
• Ideal layout for multi-generational or guest accommodations
• Finished lower level with recreation room and fitness space
• Additional lower-level bedrooms for expanded living
• Covered porch and elevated deck for outdoor enjoyment
• Breezeway connection to detached two-car garage
• Functional mudroom and laundry entry for everyday convenience

Roselin

$1600

1537
Square Ft.
2
Beds
2
Baths

Aigrette

$1920

1708
Square Ft.
4
Beds
2
Baths

Heather Knoll

$1920

2055
Square Ft.
2
Beds
2
Baths

Important information before purchasing

Purchase of these plans conveys a limited license to use the documents as a basis for a
single project, subject to site-specific modification and code compliance review by a
licensed professional. These plans are not permit-ready and are not represented as
complete construction documents.