Rendering 1
previous arrow
next arrow
Rendering 1
Rendering 2
Rendering 3
Rendering 4
1st Floor Plan
2nd Floor Plan
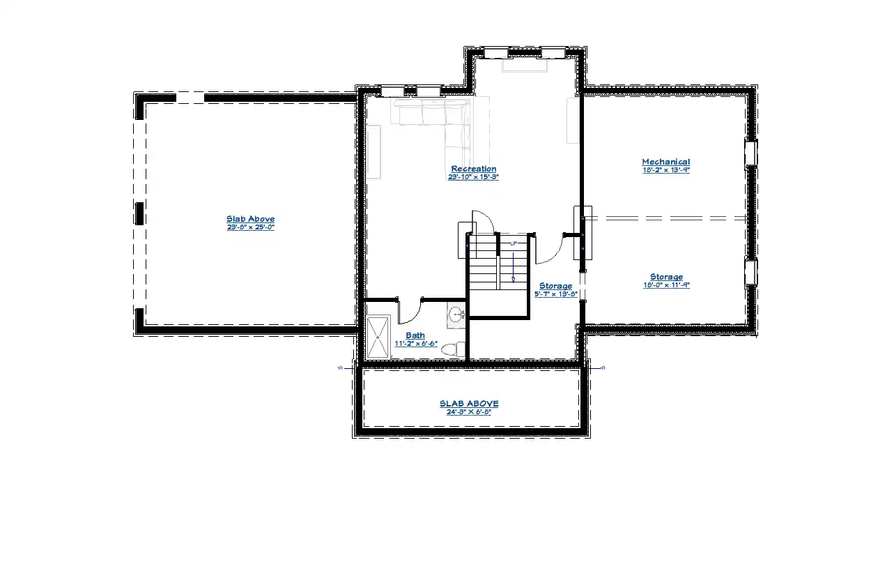
Basement Plan
previous arrow
next arrow

Robin

Robin is a thoughtfully designed two-story home that balances spacious shared living areas with private retreats for everyday comfort. The main level brings together the kitchen, dining area, and family room in an open arrangement that works well for both daily routines and entertaining. A nearby study adds flexibility for a home office, guest space, or quiet retreat. Upstairs, the home includes a generous primary suite with a private bath and walk-in closet, along with three additional bedrooms, multiple full baths, and a central loft area that provides extra space for reading, homework, or casual lounging. A second-floor laundry room adds convenience and helps keep daily life organized. The lower level expands the home’s functionality even further with a recreation room, an additional bath, and generous mechanical and storage areas. Combined with the attached garage, covered porches, and practical mudroom entry, Robin is designed to support busy households while still feeling warm, inviting, and easy to live in
The best solar orientation for this house is with the front door facing north.

$2700

Heated Sq. Ft.

3878

Beds

5

Baths

5

Stories

3

Cars

2

Plan Highlights

Country Farmhouse | Two Story | Family-Friendly Layout

• Spacious two-story layout designed for family living
• Open kitchen, dining, and family room arrangement
• Main-level study for office, guest, or flex use
• Large primary suite with private bath and walk-in closet
• Three additional upstairs bedrooms
• Central loft for reading, homework, or casual gathering
• Second-floor laundry for everyday convenience
• Finished lower level with recreation room and bath
• Attached two-car garage with mudroom entry
• Multiple storage and mechanical spaces for long-term function

Roselin

$1600

1537
Square Ft.
2
Beds
2
Baths

Aigrette

$1920

1708
Square Ft.
4
Beds
2
Baths

Heather Knoll

$1920

2055
Square Ft.
2
Beds
2
Baths

Important information before purchasing

Purchase of these plans conveys a limited license to use the documents as a basis for a
single project, subject to site-specific modification and code compliance review by a
licensed professional. These plans are not permit-ready and are not represented as
complete construction documents.