Rendering 1
previous arrow
next arrow
Rendering 1
Rendering 2
Rendering 3
Rendering 4
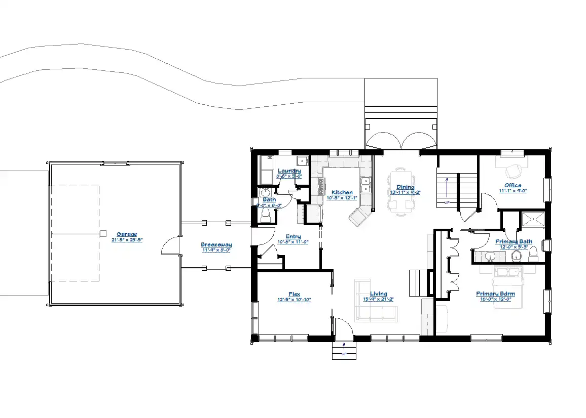
1st Floor Plan
2nd Floor Plan
previous arrow
next arrow

Lavender

Lavender is a thoughtfully designed home that combines everyday functionality with open, welcoming living spaces. The main level is centered around a spacious kitchen, dining area, and living room that flow together seamlessly, creating a comfortable environment for both daily living and entertaining. A private primary suite is located on the main floor and includes a generously sized bedroom and a full bath, offering convenience and long-term livability. A nearby flex room provides additional versatility and can be used as a home office, guest space, or hobby room. Upstairs, the home features two additional bedrooms, a shared bath, and a central loft area that overlooks the main living space below. This level also includes multiple attic storage areas, adding valuable space for organization and seasonal storage. With its blend of open-concept design, private retreats, and flexible spaces, Lavender is designed to adapt to a variety of lifestyles while maintaining a warm and inviting feel.
The best solar orientation for this house is with the front door facing north or south

$2250

Heated Sq. Ft.

2469

Beds

3

Baths

3

Stories

2

Cars

2

Plan Highlights

Country Farmhouse | Two Story | Main-Level Primary

• Main-floor primary suite for convenient living
• Open kitchen, dining, and living layout
• Spacious living room with fireplace
• Flexible main-level room for office or guest use
• Second-floor loft overlooking main living area
• Two additional upstairs bedrooms
• Shared full bath on second level
• Multiple attic spaces for extra storage
• Dedicated laundry and mudroom area
• This house was designed with double stud walls for efficiency and resilience
• Designed for both everyday living and entertaining

Roselin

$1600

1537
Square Ft.
2
Beds
2
Baths

Aigrette

$1920

1708
Square Ft.
4
Beds
2
Baths

Heather Knoll

$1920

2055
Square Ft.
2
Beds
2
Baths

Important information before purchasing

Purchase of these plans conveys a limited license to use the documents as a basis for a
single project, subject to site-specific modification and code compliance review by a
licensed professional. These plans are not permit-ready and are not represented as
complete construction documents.