Rendering 1
previous arrow
next arrow
Rendering 1
Rendering 2
Rendering 3
Rendering 4
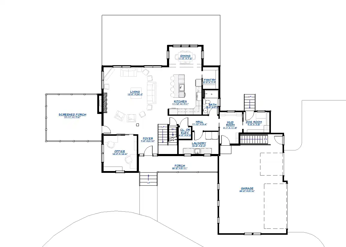
1st Floor Plan
2nd Floor Plan
Lower Level Plan
previous arrow
next arrow

Farmhouse

The Farmhouse plan is designed to combine classic farmhouse charm with modern functionality. The main level features a bright and open living space that connects the kitchen, dining, and living areas, creating a natural flow for both daily living and entertaining. A large screened porch extends the living space outdoors, offering a comfortable place to relax while enjoying the surrounding views. The main floor also includes a private office, mudroom, laundry, and a dedicated dog room, adding convenience and flexibility to the layout. Upstairs, the home offers multiple bedrooms, including a spacious primary suite with a private bath and walk-in closet. A loft area and open-to-below design add visual interest and create a more connected feel throughout the home. The lower level expands the home even further with a movie area, additional bedroom, full bath, and flexible utility and storage spaces, making it ideal for guests, recreation, or multi-purpose use. This home is perfect for those looking for a balance of traditional farmhouse style and modern living features.
The best solar orientation for this house is with the front door facing north.

$2500

Heated Sq. Ft.

4410

Beds

4

Baths

4

Stories

3

Cars

2

Plan Highlights

Modern Farmhouse | Two Story | Screened Porch

• Open-concept kitchen, dining, and living area
• Large screened porch for outdoor living
• Dedicated office on main level
• Mudroom, laundry, and dog room for everyday functionality
• Spacious primary suite with private bath and closet
• Loft and open-to-below design for added space and light
• Fully finished lower level with movie area
• Additional bedroom and bath in lower level
• Ample storage and utility spaces throughout

Roselin

$1600

1537
Square Ft.
2
Beds
2
Baths

Aigrette

$1920

1708
Square Ft.
4
Beds
2
Baths

Heather Knoll

$1920

2055
Square Ft.
2
Beds
2
Baths

Important information before purchasing

Purchase of these plans conveys a limited license to use the documents as a basis for a
single project, subject to site-specific modification and code compliance review by a
licensed professional. These plans are not permit-ready and are not represented as
complete construction documents.