Rendering 1
previous arrow
next arrow
Rendering 1
Rendering 2
Rendering 3
Rendering 4
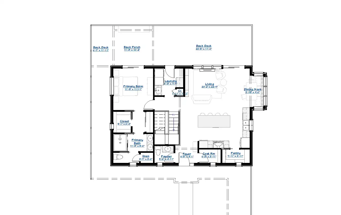
1st Floor Plan
Lower Level Plan
previous arrow
next arrow

Evergreen

The Evergreen plan is designed to maximize both indoor comfort and outdoor living. The main level features a bright, open-concept layout that connects the kitchen, dining nook, and living area, creating a natural gathering space for everyday life and entertaining. A large wraparound deck and covered porch extend the living space outdoors, offering multiple areas to relax and enjoy the surrounding views. The main-level primary suite provides convenience and privacy, complete with its own bath and walk-in closet. Additional functional spaces on the main level include a pantry, laundry room, and a welcoming foyer with easy access to the home’s central living areas. The lower level expands the home with additional bedrooms, a full bath, a pet room, and dedicated storage and utility space. This layout is ideal for families, guests, or creating flexible spaces such as hobbies or work areas. With its blend of classic design elements and modern functionality, Evergreen offers a comfortable and versatile home suited for a variety of lifestyles.

$2250

Heated Sq. Ft.

2253

Beds

4

Baths

2.5

Stories

2

Cars

2

Plan Highlights

Craftsman | Hillside Home | Two Story | Wraparound Deck

• Open-concept kitchen, dining, and living area
• Large wraparound deck and covered porch
• Main-level primary suite with private bath
• Dedicated pantry and laundry room
• Spacious living room with natural light
• Lower level with additional bedrooms and full bath
• Flexible pet room or multipurpose space
• Ample storage and utility areas
• Ideal for hillside or walkout lot designs

Roselin

$1600

1537
Square Ft.
2
Beds
2
Baths

Aigrette

$1920

1708
Square Ft.
4
Beds
2
Baths

Heather Knoll

$1920

2055
Square Ft.
2
Beds
2
Baths

Important information before purchasing

Purchase of these plans conveys a limited license to use the documents as a basis for a
single project, subject to site-specific modification and code compliance review by a
licensed professional. These plans are not permit-ready and are not represented as
complete construction documents.