Rendering 1
previous arrow
next arrow
Rendering 1
Rendering 2
Rendering 3
Rendering 4
Rendering 5
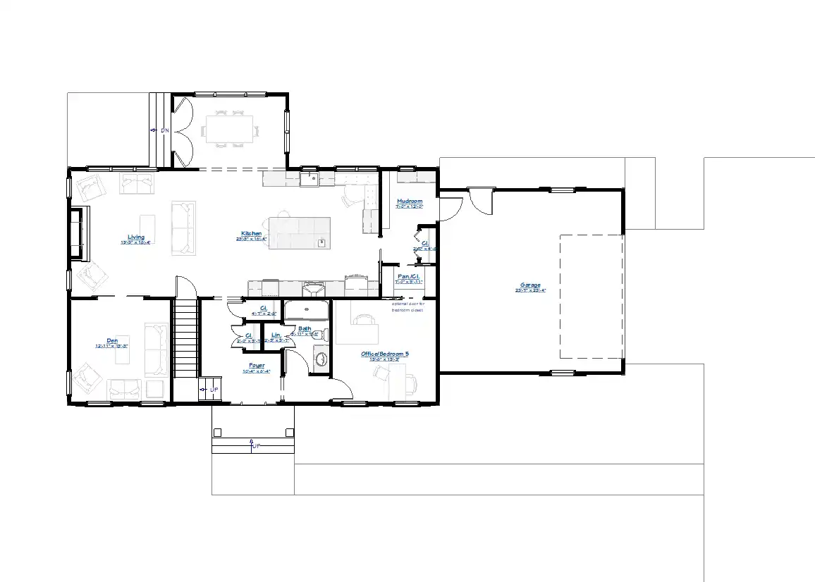
1st Floor Plan
2nd Floor Plan
Lower Level Plan
previous arrow
next arrow

Trillium

The Trillium plan blends classic architectural character with a modern, functional layout designed for today’s lifestyles. The main level features an open-concept arrangement that connects the kitchen, dining, and living areas, creating a bright and welcoming space for everyday living and entertaining. Large windows bring in natural light and enhance the connection between indoor and outdoor spaces. The layout offers a balance of openness and privacy, with thoughtfully placed rooms that support both gathering and quiet retreat. Upstairs, additional bedrooms and flexible spaces provide room for family living, guests, or home office use. With its efficient layout, clean detailing, and timeless design, Trillium is a home that will remain functional and comfortable for years to come.
The best solar orientation for this house is with the front door facing north or south.

$2500

Heated Sq. Ft.

4440

Beds

5

Baths

4

Stories

4

Cars

2

Plan Highlights

Classic Colonial | Two Story | Open Living

• Classic two-story design with balanced proportions
• Open-concept kitchen, dining, and living areas
• Large windows for abundant natural light
• Functional layout for modern family living
• Private upper-level bedroom arrangement
• Flexible spaces for office or guest use
• Timeless architectural detailing throughout
• Efficient and comfortable floor plan

Roselin

$1600

1537
Square Ft.
2
Beds
2
Baths

Aigrette

$1920

1708
Square Ft.
4
Beds
2
Baths

Heather Knoll

$1920

2055
Square Ft.
2
Beds
2
Baths

Important information before purchasing

Purchase of these plans conveys a limited license to use the documents as a basis for a
single project, subject to site-specific modification and code compliance review by a
licensed professional. These plans are not permit-ready and are not represented as
complete construction documents.